ENGLISH

予約

TEL

concept 城

concept 城

コンセプト城
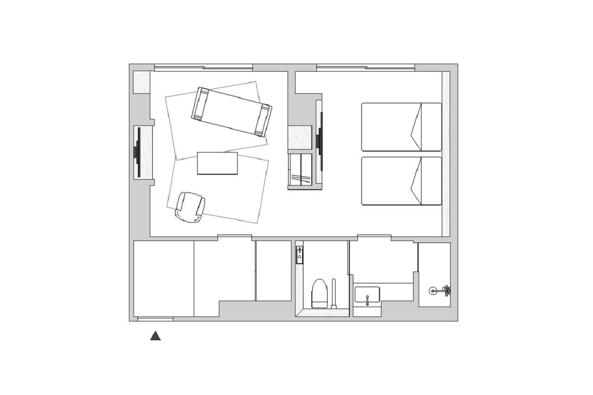
客室タイプ

和室+ベッドルーム(ツインベッド)
シャワー・トイレ・洗面付

広さ

50.0㎡

定員数

4名

この部屋を予約

西洋をモチーフにした
遊び心のある空間で心ときめかせる

マントルピースのあるリビング、飾られた食器やキッチンツールは西洋の地を感じるだけでなく、一種の物語を思い出すかもしれません。ヘッドボードの魔術書が並ぶ本棚のデザインなど寝室では西洋にあった城にいるような気持ちを味わえるのではないでしょうか。

公式ホームページからの予約がお得

公式ホームページからご予約いただきましたお客様には、特典として併設される日帰り温泉「金泉の湯」利用券(1回1,500円分相当)を宿泊者様分プレゼント