ENGLISH

予約

TEL

Casual

Casual

カジュアル
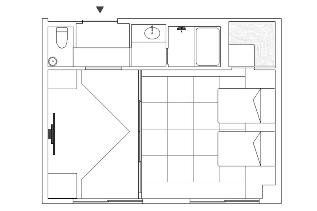
客室タイプ

和室 + ベッドルーム(ツインベッド)
シャワー・トイレ・洗面付

広さ

50.0㎡

定員数

4名

Watch VIdeo

四季折々を楽しめる品格のある空間

伝統的な和風の様式を基調に重厚感のある純和風のお部屋でゆったりと過ごすことができます。施設内にある桜、紅葉など四季を窓から眺められ小川のせせらぎを感じることで心と身体を癒してくれるお部屋となります。

公式ホームページからの予約がお得

公式ホームページからご予約いただきましたお客様には、特典として併設される日帰り温泉「金泉の湯」利用券(1回1,500円分相当)を宿泊者様分プレゼント